Projekte
·
Über uns
·
Kontakt
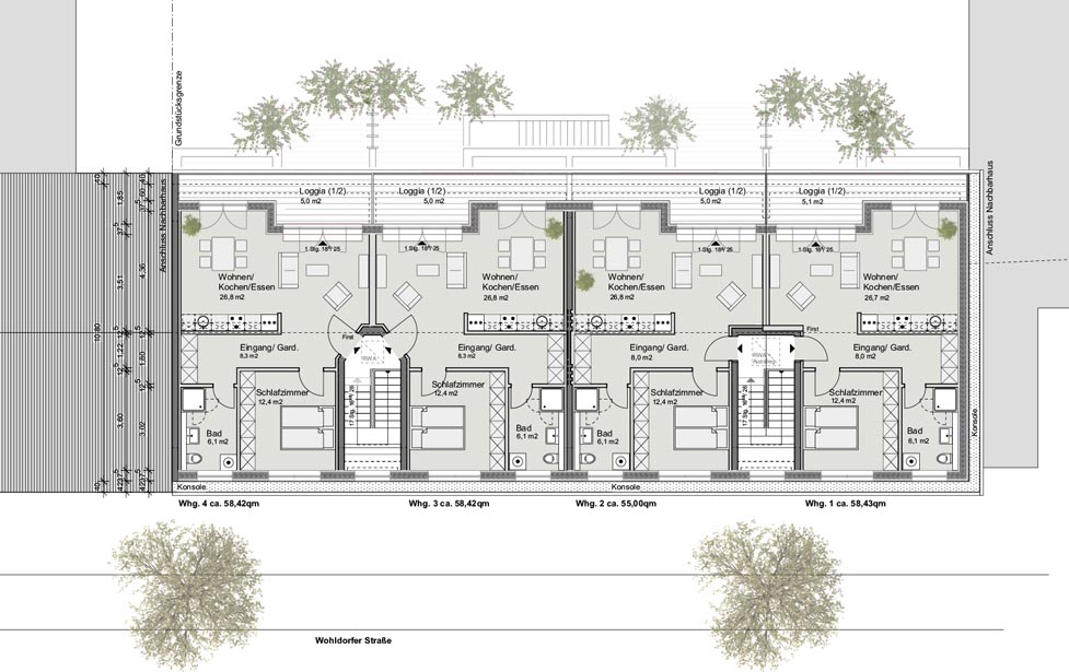
Wohldorfer Straße 2-4 HH
Dachaufstockung auf ein bestehendes Mehrfamilienhaus (4 WE)
Bauherr:
Privat
Bauzeit:
nicht ausgeführt (n.a.)
Leistungsphasen:
1 – 5
Projekte
Alle
·
Praxis / Klinikbau
·
Dachaufstockung
·
Bauen im Bestand / Denkmalpflege
·
Neubau
Projekte
·
Über uns
·
Kontakt
·
Impressum
·
Datenschutzerklärung
© 2026
·
Ziehlke Architekten