Projekte
·
Über uns
·
Kontakt
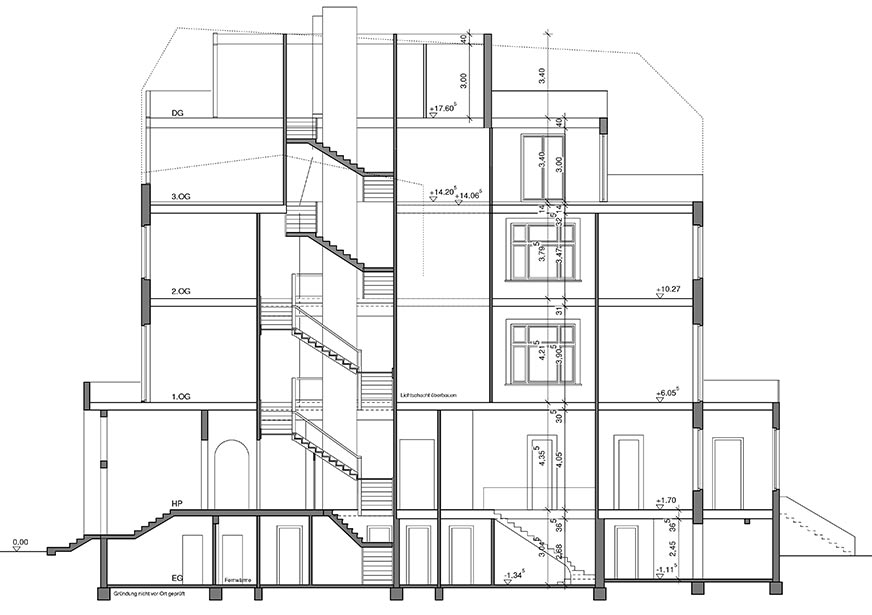
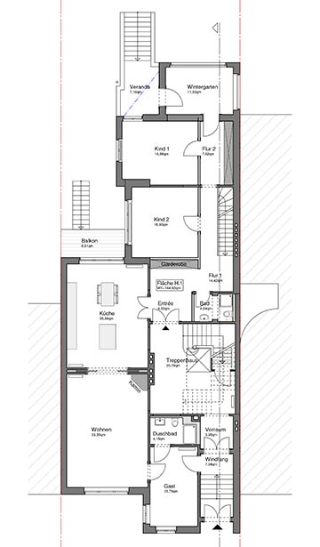
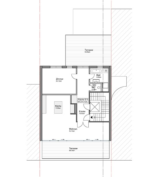
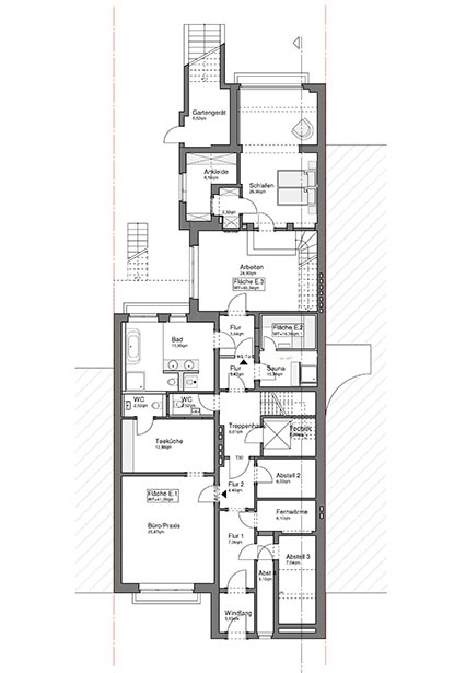
Mundsburger Damm 4 HH
Umbau eines Stadthauses
Bauherr:
Privat
Bauzeit:
2011
Leistungsphasen:
1 – 4
Projekte
Alle
·
Praxis / Klinikbau
·
Dachaufstockung
·
Bauen im Bestand / Denkmalpflege
·
Neubau
Projekte
·
Über uns
·
Kontakt
·
Impressum
·
Datenschutzerklärung
© 2026
·
Ziehlke Architekten