Projekte
·
Über uns
·
Kontakt
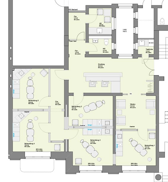
Dermatologische Praxis Eppendorfer Landstraße HH
Umbau zu einer dermatologischen Praxis, Erdgeschoss
Praxis-/ Klinikbau in Hamburg
·
2017
Bauherr:
Privat
Bauzeit:
2017
Leistungsphasen:
5 – 8
Projekte
Alle
·
Praxis / Klinikbau
·
Dachaufstockung
·
Bauen im Bestand / Denkmalpflege
·
Neubau
Projekte
·
Über uns
·
Kontakt
·
Impressum
·
Datenschutzerklärung
© 2026
·
Ziehlke Architekten