Projekte
·
Über uns
·
Kontakt
Herbert Weichmannstraße 60-62 HH
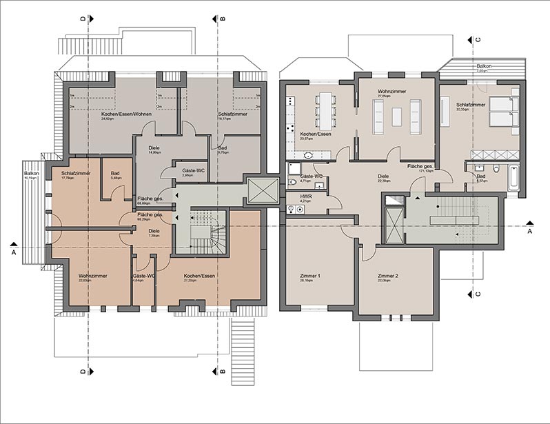
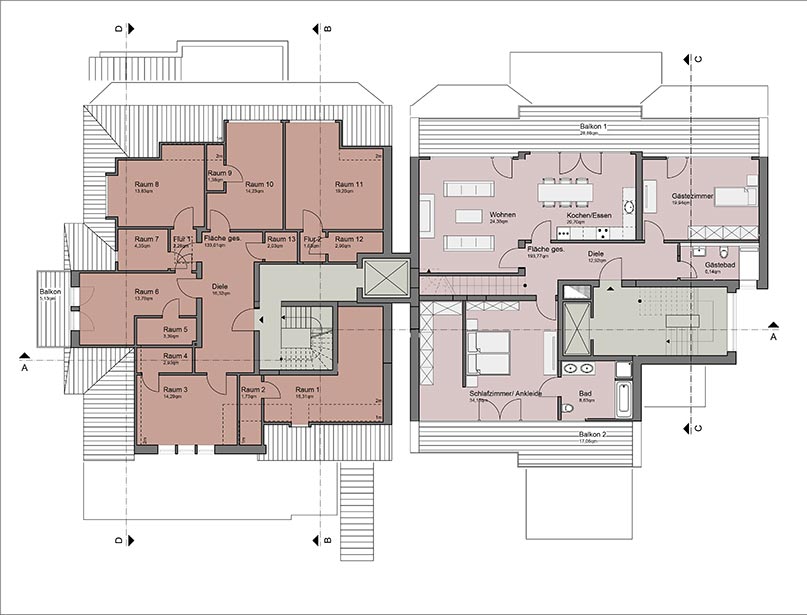
Umbau eines Altenpflegeheimes in Wohnungen
Bauherr:
Privat
Bauzeit:
nicht ausgeführt (n.a.)
Leistungsphasen:
1 – 3
Projekte
Alle
·
Praxis / Klinikbau
·
Dachaufstockung
·
Bauen im Bestand / Denkmalpflege
·
Neubau
Projekte
·
Über uns
·
Kontakt
·
Impressum
·
Datenschutzerklärung
© 2026
·
Ziehlke Architekten