Projekte
·
Über uns
·
Kontakt
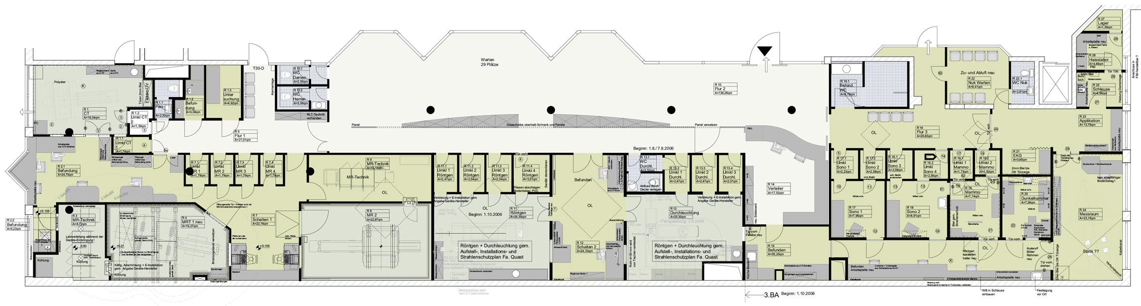
Radiologie Rahlstedt - Rahlstedter Bahnhofstraße 25 HH
Umbau und Erweiterung
Praxis-/ Klinikbau in Hamburg
·
2008
Bauherr:
Privat
Bauzeit:
2008
Leistungsphasen:
1 – 8
Projekte
Alle
·
Praxis / Klinikbau
·
Dachaufstockung
·
Bauen im Bestand / Denkmalpflege
·
Neubau
Projekte
·
Über uns
·
Kontakt
·
Impressum
·
Datenschutzerklärung
© 2026
·
Ziehlke Architekten