Projekte
·
Über uns
·
Kontakt
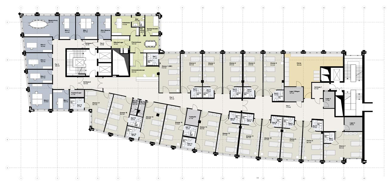
Admiralitätsstraße 3-4 (Klinik Fleetinsel) HH
Umbau zu einer Bettenstation
3. OG
Praxis-/ Klinikbau in Hamburg
·
2018
Gebäude:
Bauherr:
Privat
Bauzeit:
2018
Leistungsphasen:
1 – 8
Projekte
Alle
·
Praxis / Klinikbau
·
Dachaufstockung
·
Bauen im Bestand / Denkmalpflege
·
Neubau
Projekte
·
Über uns
·
Kontakt
·
Impressum
·
Datenschutzerklärung
© 2026
·
Ziehlke Architekten